|
型号
|
公称压力
|
壳体试验压力
|
密封试验压力
|
适用介质
|
工作温度
|
|
H41X-10
|
1.0MPa
|
1.5MPa
|
1.1MPa
|
水及弱腐蚀性流体
|
≤80℃
|
|
H41X-16
|
1.6MPa
|
2.4MPa
|
1.76MPa
|
水及弱腐蚀性流体
|
≤80℃
|
|
型号
|
阀体
|
密封圈
|
弹 簧
|
阀盖环
|
|
H41X-10
|
铸铁、不锈钢、制合金
|
丁腈豫胶(NBR)
|
不锈钢丝1Cr18Ni9Ti
|
球墨铸铁或碳钢
|
|
H41X-16
|
铸铁、小锈制、铜合金
|
丁腈豫胶(NBR)
|
不锈钢丝1Cr18Ni9Ti
|
球墨铸铁或碳钢
|

|
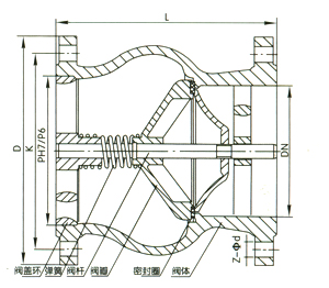
公称压力PN(mm)
|
公称通径DN(mm)
|
尺寸(mm)
|
||||
|
L
|
D
|
K
|
b
|
Z-φd
|
||
|
1.0
|
40
|
112
|
145
|
110
|
18
|
4-18
|
|
50
|
120
|
160
|
125
|
20
|
4-18
|
|
|
65
|
130
|
180
|
145
|
20
|
4-18
|
|
|
80
|
150
|
195
|
160
|
22
|
8-18
|
|
|
100
|
165
|
215
|
180
|
24
|
8-18
|
|
|
125
|
190
|
245
|
210
|
26
|
8-18
|
|
|
150
|
210
|
280
|
240
|
26
|
8-22
|
|
|
200
|
255
|
335
|
295
|
28
|
8-22
|
|
|
250
|
310
|
390
|
350
|
28
|
12-22
|
|
|
300
|
320
|
440
|
400
|
28
|
12-22
|
|
|
350
|
380
|
500
|
46
|
30
|
16-22
|
|
|
400
|
405
|
565
|
515
|
32
|
16-26
|
|
|
450
|
430
|
615
|
565
|
32
|
20-26
|
|
|
500
|
450
|
670
|
620
|
34
|
20-26
|
|
|
600
|
510
|
780
|
725
|
36
|
20-30
|
|
|
1.6
|
40
|
112
|
145
|
110
|
18
|
4-18
|
|
50
|
120
|
160
|
125
|
20
|
4-18
|
|
|
65
|
130
|
180
|
145
|
20
|
4-18
|
|
|
80
|
150
|
195
|
160
|
22
|
8-18
|
|
|
100
|
165
|
215
|
180
|
24
|
8-18
|
|
|
125
|
190
|
245
|
210
|
26
|
8-18
|
|
|
150
|
210
|
280
|
240
|
26
|
8-22
|
|
|
200
|
255
|
335
|
295
|
30
|
12-22
|
|
|
250
|
310
|
405
|
355
|
32
|
12-26
|
|
|
300
|
320
|
460
|
410
|
32
|
12-26
|
|
|
350
|
380
|
520
|
470
|
36
|
16-26
|
|
|
400
|
405
|
580
|
525
|
38
|
16-30
|
|
|
450
|
430
|
640
|
585
|
40
|
20-30
|
|
|
500
|
450
|
715
|
650
|
42
|
20-33
|
|
|
600
|
510
|
840
|
770
|
48
|
20-36
|
|