
|
公称压力(Mpa)
|
2.5
|
|
壳体试验压力(Mpa)*
|
3.75
|
|
密封试验压力(Mpa)
|
2.5
|
|
最高进口压力(Mpa)
|
2.5
|
|
出口压力范围(Mpa)
|
0.02-1.6
|
|
压力特性偏差(Mpa)△P2P
|
GB12244-1989
|
|
流量特性偏差(Mpa)P2G
|
GB12244-1989
|
|
渗漏量
|
GB12245-1989
|
|
零件名称
|
零件材料
|
|
阀体 阀盖
|
WCB
|
|
阀座
|
2Cr13
|
|
阀瓣
|
2Cr13
|
|
阀杆
|
2Cr13
|
|
膜片
|
1Cr18Ni9Ti
|
|
调节弹簧
|
60Si2Mn
|
|
DN
|
15
|
20
|
25
|
32
|
40
|
50
|
|
Cv
|
2.9
|
5.3
|
8.6
|
11.6
|
16.5
|
29.1
|
|
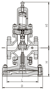
DN
|
L
|
H1
|
H
|
D
|
|
15
|
147
|
235
|
145
|
207
|
|
20
|
154
|
235
|
145
|
207
|
|
25
|
160
|
235
|
145
|
207
|
|
32
|
180
|
250
|
160
|
220
|
|
40
|
16
|
250
|
160
|
220
|
|
50
|
230
|
270
|
180
|
220
|